Woonoppervlakte
Circa 104 m²
Perceeloppervlakte
Circa 275 m²
Bouwjaar
Gebouwd in 1969
Aantal kamers
5 kamers (3 slaapkamers)

Vondellaan 97

4707 AD, Roosendaal (Noord-Brabant)

Aan de Vondellaan 97 in Roosendaal staat deze sfeervolle en instapklare woning in een rustige en groene woonwijk. De buurt staat bekend om haar kindvriendelijke karakter, uitstekende voorzieningen en goede bereikbaarheid. Scholen, winkels en sportfaciliteiten zijn allemaal in de directe omgeving aanwezig. Ideaal voor wie comfortabel en centraal wil wonen. Deze strak afgewerkte woning biedt alles wat je zoekt: een moderne open keuken met een schiereiland, een sfeervolle serre met glazen schuifwanden, vloerverwarming op de begane grond, twaalf zonnepanelen en een garage met eigen oprit. Alles is tot in de puntjes verzorgd. Met drie keurige slaapkamers op de eerste verdieping en een multifunctionele zolderruimte is dit huis uitermate geschikt voor een gezin. Of je nu een thuiswerkplek, logeerkamer of hobbyruimte nodig hebt, hier is alle ruimte.
Ben je op zoek naar een woning waar je direct in kunt trekken, met volop ruimte en comfort? Plan dan snel een bezichtiging.

Entree:
Je betreedt de woning via de verzorgde voortuin. In de hal vind je een net toilet, meterkast, trap naar boven en natuurlijk toegang tot de woonkamer. De hal is licht, fris en vormt een fijne binnenkomer.

Wonen & Koken:
De woonkamer is een heerlijke, lichte ruimte dankzij de grote raampartijen aan zowel de voor- als achterkant. Aan de voorzijde is nu een gezellige loungehoek gecreëerd, aan de achterzijde vind je het eetgedeelte met ruimte voor een royale eettafel. De open keuken is een echte eyecatcher: strak wit met een zwart werkblad. Uitgerust met alle gemakken zoals een fornuis, afzuigkap, combi-oven, koelkast, vaatwasser én een quooker. Het schiereiland met bar nodigt uit tot borrelen en kletsen tijdens het koken. Vanuit de keuken heb je toegang tot de trapkast én de prachtige serre.

Slapen, Dromen & Douchen:
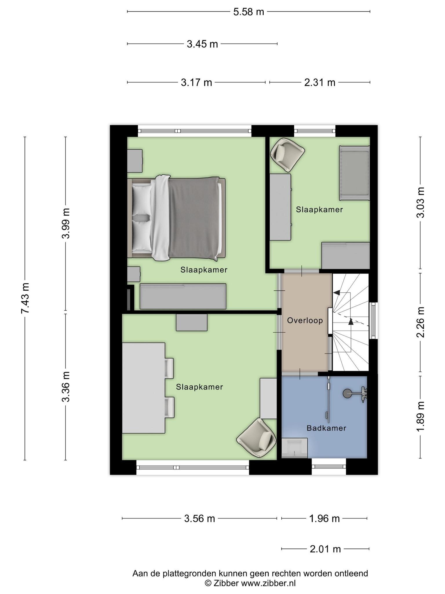
Op de eerste verdieping vind je drie slaapkamers: twee ruime kamers en een iets kleinere kamer, perfect als kinderkamer, werkkamer of walk-in closet. De badkamer is modern en stijlvol met een inloopdouche met regendouche, een wastafelmeubel en ruimte voor een kastje of wasmand. De zolderverdieping is bereikbaar via een vaste trap en heeft een dakraam. Hier vind je de wasmachine- en drogeraansluitingen én volop ruimte voor een logeerbed, werkplek of opslag.

Tuinieren, Zonnen & Genieten:
De serre is zonder twijfel het paradepaardje van deze woning. Dankzij de glazen schuifwanden kun je hier het hele jaar door genieten van binnen-buitenleven. Er is ruimte voor zowel een eethoek als een loungehoek. De tuin is strak en modern met donkergrijze tegels en volledig betegeld, ideaal voor meerdere zitjes en onderhoudsarm. Achter in de tuin vind je een berging en een garage, bereikbaar via een afgesloten poort aan de zijkant van het huis. Ook heb je hier een eigen oprit met plek voor een auto.

Sfeer en Doelgroep
De sfeer in huis is modern, fris en uitnodigend. Dankzij de strakke afwerking en slimme indeling is dit huis perfect voor gezinnen, stellen of iedereen die op zoek is naar comfort, ruimte én duurzaamheid.

Toelichtingsclausule NEN2580:
De Meetinstructie is gebaseerd op de NEN2580. De Meetinstructie is bedoeld om een meer eenduidige manier van meten toe te passen voor het geven van een indicatie van de gebruiksoppervlakte. De Meetinstructie sluit verschillen in meetuitkomsten niet volledig uit, door bijvoorbeeld interpretatieverschillen, afrondingen of beperkingen bij het uitvoeren van de meting.

Plattegronden

Overdracht

Vraagprijs
€ 375.000 k.k.
Status
Verkocht
Aanvaarding
In overleg

Bouw

Object type
Eengezinswoning, hoekwoning
Soort bouw
Bestaande bouw
Bouwjaar
1969
Soort dak
Zadeldak bedekt met pannen

Oppervlakte en inhoud

Woonoppervlakte
104 m²
Perceeloppervlakte
275 m²
Inhoud
367 m³
Externe bergruimte
32 m²
Gebouwgeb. buitenruimte
21 m²

Indeling

Aantal kamers
5 kamers (3 slaapkamers)
Aantal badkamers
1 badkamer
Badkamervoorzieningen
Wastafel, inloopdouche
Aantal woonlagen
3 woonlagen
Voorzieningen
Zonnepanelen

Energie

Energielabel
A
Energielabel registratie
25-04-2019
Isolatie
Dakisolatie, muurisolatie, vloerisolatie, dubbel glas, hr glas
Verwarming
Cv-ketel
Warm water
Cv-ketel
Cv ketel
Nefit combiketel gas gestookt uit 2013 (eigendom)

Buitenruimte

Ligging
In centrum
Tuin
Achtertuin, voortuin

Bergruimte

Schuur / berging
Aangebouwd hout

Garage

Soort garage
Geen garage

Parkeergelegenheid

Soort parkeergelegenheid
Openbaar parkeren, op eigen terrein

Energieverbruik in Roosendaal

Energielabel deze woning

Energielabel A

Publicatie energielabel: 25-04-2019

Stroomverbruik per jaar

2970 kWh

(Gemiddelde hoekwoning in Roosendaal)

Gasverbruik per jaar

1280 m³

(Gemiddelde hoekwoning in Roosendaal)

* Cijfers zijn afkomstig van het CBS en bedoeld als indicatie en kunnen verschillen voor deze woning

Indicatie hypotheeklasten

Eigen inleg:
Spaargeld / overwaarde

Rente:
Laagste 10-jaars rente

Laagste 10-jaars rente

2,78% - Centraal Beheer - NHG


3,04% - Centraal Beheer - 80%

Laagste 20-jaars rente

3,29% - Centraal Beheer - NHG


3,52% - Centraal Beheer - 80%

Laagste 30-jaars rente

3,41% - Centraal Beheer - NHG


3,7% - Argenta - 80%


Hypotheek:

Bruto maandlasten: € 0 p/m

Netto maandlasten: € 0 p/m

Hoe berekenen we dit?

Het rentepercentage is gebaseerd op de laagste 10 jaars vaste rente voor één hypotheekdeel. De vermelde rente (2.78% met NHG) is gecontroleerd op 27-04-2026. Deze berekening is gebaseerd op een annuïteitenhypotheek die volledig wordt afgelost, waarbij de maandlasten gedurende de gehele looptijd gelijk blijven. De werkelijke rente en netto maandlasten kunnen variëren, afhankelijk van uw persoonlijke situatie en de hypotheekverstrekker. Raadpleeg een financieel adviseur voor een nauwkeurige berekening en advies. Aan deze berekening kunnen geen rechten worden ontleend; het dient enkel als indicatie.

Documentatie

Zonnegrenzen bekijken

Op de kaart

Inwoners in Roosendaal

Cijfers voor postcodegebied 4707

Totaal aantal inwoners
16200 inwoners
Mannen
49%
Vrouwen
51%

Inwoners in Roosendaal

Cijfers voor postcodegebied 4707

tot 15 jaar
15%
15 tot 25 jaar
11%
25 tot 35 jaar
21%
45 tot 65 jaar
26%
65 en ouder
26%

Huishoudens in Roosendaal

Cijfers voor postcodegebied 4707

Eenpersoons zonder kinderen
35%
Meerpersoons zonder kinderen
31%
Huishoudens zonder kinderen
66%

Huishoudens in Roosendaal

Cijfers voor postcodegebied 4707

Huishoudens met één kind
9%
Huishoudens met meerdere kinderen
24%
Huishoudens met kinderen
33%

Woningen in Roosendaal

Cijfers voor postcodegebied 4707

Woningen voor 1945
1%
Woningen tussen 1945 en 1965
1%
Woningen tussen 1965 en 1975
53%
Woningen tussen 1975 en 1985
19%
Woningen tussen 1985 en 1995
13%

Woningen in Roosendaal

Cijfers voor postcodegebied 4707

Woningen tussen 1995 en 2005
4%
Woningen tussen 2005 en 2015
9%
Woningen na 2015
1%
Huurwoningen
50%
Koopwoningen
50%

Overige in Roosendaal

Cijfers voor postcodegebied 4707

Gemiddelde WOZ waarde
€ 201.000,-
Personen onder de 65 met uitkering
9%

Overige in Roosendaal

Cijfers voor postcodegebied 4707

Adressen per km²
2025
Stedelijkheid (schaal 1 op 5)
80%
Postcode kaart 4707 Gemeente kaart roosendaal

Indien u vragen heeft of u wilt een bezichtiging inplannen, dan kunt u gebruik maken van het formulier hiernaast. Er zal daarna op korte termijn contact met u worden opgenomen.

Vakidioten met een passie voor vastgoed

Bij C&R Makelaars draait alles om jou en je woning. Wij zijn een frisse, energieke generatie makelaars met een passie voor mensen en de woningmarkt.

We geloven in een persoonlijke aanpak zonder poespas: eerlijk, transparant en altijd met een flinke dosis enthousiasme. Het verkopen van je huis is een belangrijke stap, en daarom begeleiden we je op een manier die bij jou past, van begin tot eind.

Met onze diepgaande kennis van de lokale markt geven we je waardevol advies dat perfect aansluit bij jouw situatie én dat van potentiële kopers.

Daarnaast staat ons creatieve team van vastgoedmarketeers klaar om jouw woning in de schijnwerpers te zetten. Met slimme en doordachte strategieën zorgen we ervoor dat je huis opvalt en het maximale resultaat behaalt.

Jouw tevredenheid is ons einddoel. We zetten alles op alles om je verwachtingen te overtreffen. Nieuwsgierig naar ons team? Klik op de button hieronder en maak kennis met ons!

Vakidioten met een passie voor vastgoed
Reviews C&R Makelaars

Vondellaan 97, Roosendaal

€ 375.000 k.k. - Verkocht

Helaas, deze woning is verkocht!

Net te laat, deze woning is al verkocht. Laat een zoekopdracht bij ons achter zodat wij u direct kunnen helpen wanneer er nieuw aanbod beschikbaar komt.